有料老人ホーム
NICO
お電話でお問い合わせ:073-476-4165 ヨイローゴ
資料請求
見学予約
ホーム
NICOとは
やすらぎの暮らし
入居のご案内
施設のご案内
アクセス・周辺環境
施設のご案内
トップ
> 施設のご案内|フロアマップ
フロアマップ
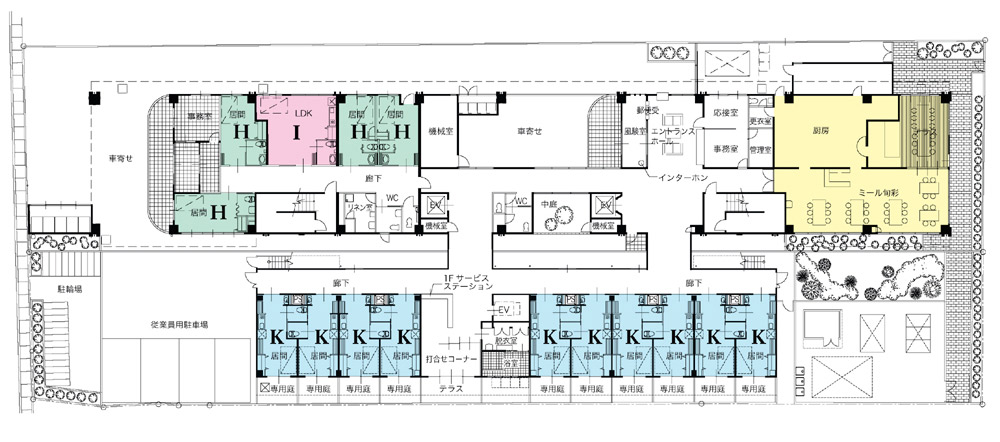
1階
1階フロアマップ
大きなサイズで見る
【共用スペース】
併設レストラン「ミール旬彩」、
エントランスホール
、郵便受、事務室
中庭
、サービスステーション、
打合わせコーナー
、
浴室
(
脱衣室
)
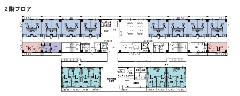
2階
2階フロアマップ
大きなサイズで見る
【共用スペース】
機能訓練室兼食堂
、
機能訓練室兼食堂(新館)
、
理容コーナー
サービスステーション、
相談室
、
洗濯コーナー
、
浴室
(
脱衣室
)
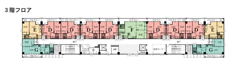
3階
3階フロアマップ
大きなサイズで見る
【共用スペース】談話コーナー
4階
3階フロアマップ
大きなサイズで見る
【共用スペース】
健康管理室
、
相談室
、ゲストルーム、共用ルーフバルコニー
ページトップへ
施設のご案内
施設概要
フロアマップ
施設職員配置状況
共用施設等の利用細則
社団法人全国有料老人ホーム協会